
서울 강남 신사동 피부과 CCTV 사전배선 공사 – 하이크비전 200만 화소 예정 / 카메라 14대 구성 / 인테리어 중 포설 작업
안녕하세요 의료시설·상가 전문 보안 시공 브랜드 바르다 CCTV입니다.
이번 현장은 서울 강남구 신사동에 위치한 피부과 신축 현장으로, 현재 인테리어 공사가 진행 중인 상태에서 CCTV 사전 배선 작업을 위해 방문했습니다.
완공 후 총 14대의 하이크비전 200만 화소 카메라가 설치될 예정인 대규모 보안 프로젝트 현장입니다.
시공 개요
위치: 서울특별시 강남구 신사동
시설 유형: 피부과 의원 (신축 인테리어 중)
시공 목적: CCTV 사전 배선 및 장비 위치 지정
예정 장비: 하이크비전 200만 화소 카메라 14대
작업 내용: 카메라 배선 포설 및 녹화기 위치 사전 확정
작업 일정: 오전 일찍 방문하여 하루 종일 배선 공사 진행
작업 내용 및 포인트
이번 공사는 본격적인 마감 전, 카메라 케이블 선로를 매립 형태로 사전 포설하는 단계였습니다.
벽체 마감과 천장 구조가 완성되기 전에 케이블을 미리 넣어두어, 인테리어 후에는 노출선 없이 깔끔한 마감이 가능하도록 설계했습니다.
1. 위치 선정
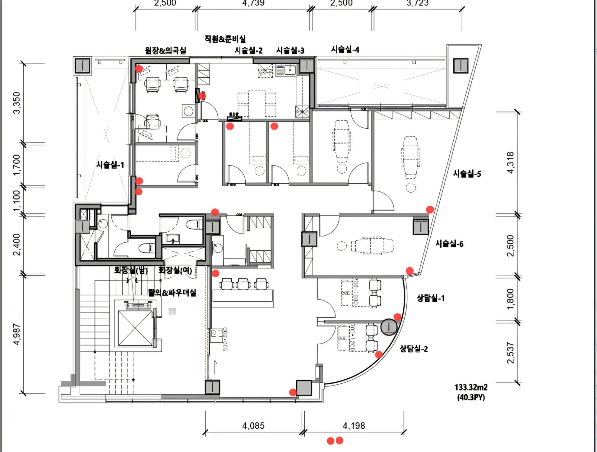
현장 방문 후 의사실, 시술실, 대기실, 카운터, 복도 등 총 14개 구간의 카메라 설치 위치와 녹화기 설치 공간을 사전 협의했습니다.
모든 구역이 사각지대 없이 촬영될 수 있도록 각도를 고려해 배치했습니다.
2. 배선 포설
카메라 라인별로 케이블을 구분 정리하여 CD관 내부에 매립 포설을 진행했고, 전원선과 영상선을 분리 배선하여 전기 간섭을 최소화했습니다.
작업은 오전부터 시작해 하루 종일 이어졌으며, 모든 라인 테스트까지 완료한 후 당일 작업을 마무리했습니다.
3. 향후 설치 계획
인테리어 마감이 완료되면 하이크비전 200만 화소 카메라 14대를 본격 설치할 예정입니다.
각 구역별 용도에 맞춰 실내용·실외용 혼합 구성을 적용하며, 녹화기는 중앙 통신실 내에 설치해 관리 효율성을 높일 계획입니다.
현장 특징
고급 피부과 인테리어와 어울리는 매립형 배선 시공
전 구간 노출 없는 깔끔한 선 정리
향후 설치 시 카메라 14대 전 구간 완전 커버 가능 구조
시술실 및 대기실의 프라이버시 보호 고려한 위치 설계
이런 현장에 적합합니다
병원·피부과·치과 등 의료시설 신축 또는 리모델링 중인 현장
인테리어 공정 전 사전배선이 필요한 보안 시스템 구축
완공 후 배선 노출 없이 깔끔한 마감 퀄리티를 원하는 고객
다수의 카메라를 효율적으로 연결해야 하는 대형 실내 공간
CCTV 설치 및 시공 상담 바르다 CCTV 고객센터 1666-2293
서울 전 지역 출장 가능 / 하이크비전 정품 사용 / 의료시설 전문 시공 경험 다수 보유
#강남CCTV설치 #강남CCTV설치업체 #강남CCTV렌탈 #신사동CCTV설치 #신사동CCTV설치업체 #신사동CCTV렌탈 #병원CCTV설치 #병원CCTV설치업체 #병원CCTV렌탈 #하이룩CCTV설치 #하이룩CCTV설치업체 #하이크비전CCTV설치 #하이크비전CCTV설치업체 #CCTV설치 #CCTV설치업체 #CCTV렌탈 #바르다CCTV















서울 강남 신사동 피부과 CCTV 사전배선 공사 – 하이크비전 200만 화소 예정 / 카메라 14대 구성 / 인테리어 중 포설 작업
안녕하세요 의료시설·상가 전문 보안 시공 브랜드 바르다 CCTV입니다.
이번 현장은 서울 강남구 신사동에 위치한 피부과 신축 현장으로, 현재 인테리어 공사가 진행 중인 상태에서 CCTV 사전 배선 작업을 위해 방문했습니다.
완공 후 총 14대의 하이크비전 200만 화소 카메라가 설치될 예정인 대규모 보안 프로젝트 현장입니다.
시공 개요
위치: 서울특별시 강남구 신사동
시설 유형: 피부과 의원 (신축 인테리어 중)
시공 목적: CCTV 사전 배선 및 장비 위치 지정
예정 장비: 하이크비전 200만 화소 카메라 14대
작업 내용: 카메라 배선 포설 및 녹화기 위치 사전 확정
작업 일정: 오전 일찍 방문하여 하루 종일 배선 공사 진행
작업 내용 및 포인트
이번 공사는 본격적인 마감 전, 카메라 케이블 선로를 매립 형태로 사전 포설하는 단계였습니다.
벽체 마감과 천장 구조가 완성되기 전에 케이블을 미리 넣어두어, 인테리어 후에는 노출선 없이 깔끔한 마감이 가능하도록 설계했습니다.
1. 위치 선정
현장 방문 후 의사실, 시술실, 대기실, 카운터, 복도 등 총 14개 구간의 카메라 설치 위치와 녹화기 설치 공간을 사전 협의했습니다.
모든 구역이 사각지대 없이 촬영될 수 있도록 각도를 고려해 배치했습니다.
2. 배선 포설
카메라 라인별로 케이블을 구분 정리하여 CD관 내부에 매립 포설을 진행했고, 전원선과 영상선을 분리 배선하여 전기 간섭을 최소화했습니다.
작업은 오전부터 시작해 하루 종일 이어졌으며, 모든 라인 테스트까지 완료한 후 당일 작업을 마무리했습니다.
3. 향후 설치 계획
인테리어 마감이 완료되면 하이크비전 200만 화소 카메라 14대를 본격 설치할 예정입니다.
각 구역별 용도에 맞춰 실내용·실외용 혼합 구성을 적용하며, 녹화기는 중앙 통신실 내에 설치해 관리 효율성을 높일 계획입니다.
현장 특징
고급 피부과 인테리어와 어울리는 매립형 배선 시공
전 구간 노출 없는 깔끔한 선 정리
향후 설치 시 카메라 14대 전 구간 완전 커버 가능 구조
시술실 및 대기실의 프라이버시 보호 고려한 위치 설계
이런 현장에 적합합니다
병원·피부과·치과 등 의료시설 신축 또는 리모델링 중인 현장
인테리어 공정 전 사전배선이 필요한 보안 시스템 구축
완공 후 배선 노출 없이 깔끔한 마감 퀄리티를 원하는 고객
다수의 카메라를 효율적으로 연결해야 하는 대형 실내 공간
CCTV 설치 및 시공 상담 바르다 CCTV 고객센터 1666-2293
서울 전 지역 출장 가능 / 하이크비전 정품 사용 / 의료시설 전문 시공 경험 다수 보유
#강남CCTV설치 #강남CCTV설치업체 #강남CCTV렌탈 #신사동CCTV설치 #신사동CCTV설치업체 #신사동CCTV렌탈 #병원CCTV설치 #병원CCTV설치업체 #병원CCTV렌탈 #하이룩CCTV설치 #하이룩CCTV설치업체 #하이크비전CCTV설치 #하이크비전CCTV설치업체 #CCTV설치 #CCTV설치업체 #CCTV렌탈 #바르다CCTV